Lyst kælderlejemål centralt i Aarhus C

Lyst kælderlejemål centralt i Aarhus C

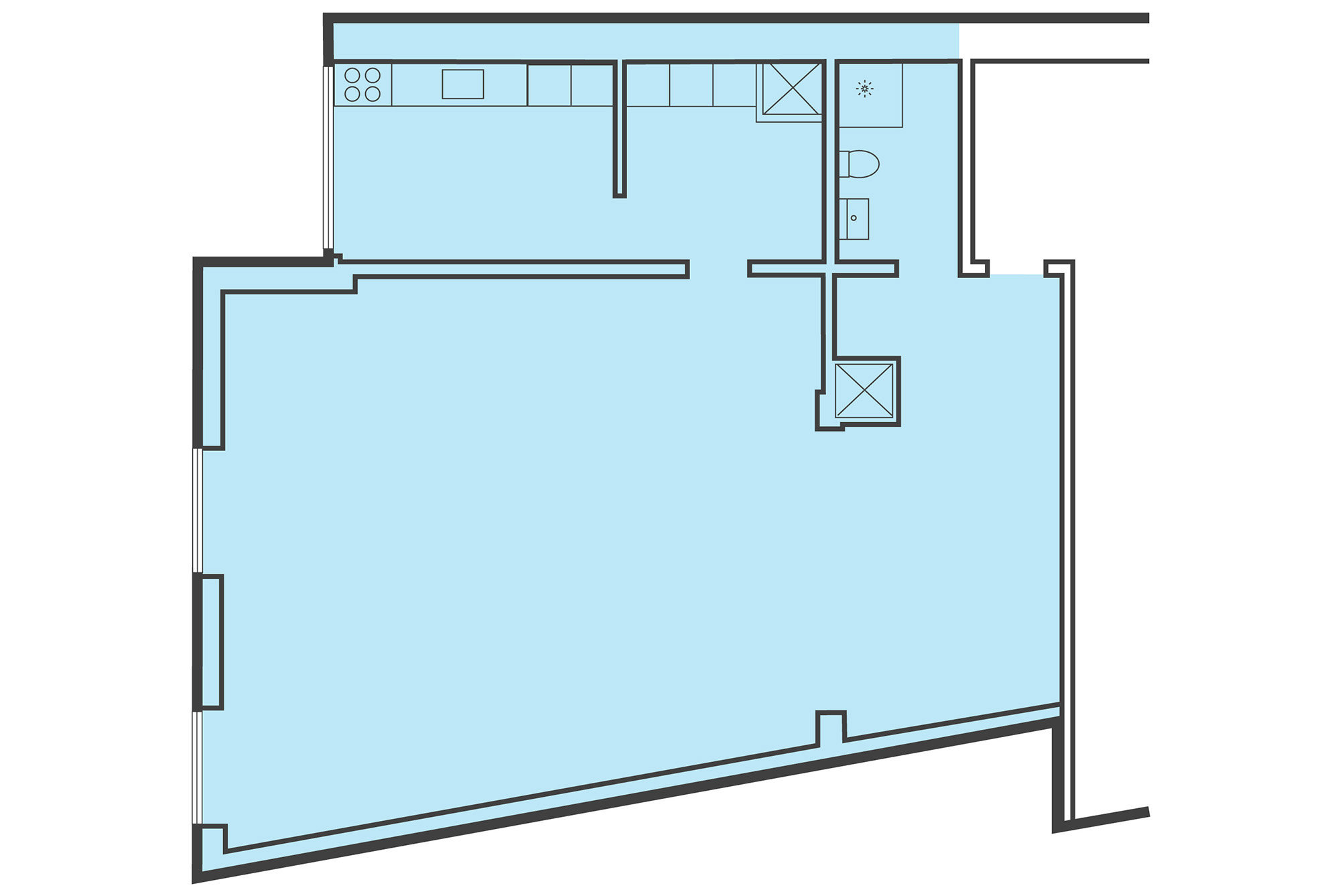
121 m² stort og lyst kælderlejemål beliggende på Christiansgade tæt på Rådhuspladsen i Aarhus C.

Lejemålet fremstår pænt med rummeligt lokale med parketgulve, køkken med sorte elementer og toilet/bad med lyse klinker.

Vinduer mod Christiansgade giver lejemålet et rigtig fint lysindfald.

Lejemålet entres via ejendommens opgang som med elevator gør, at man opnår niveaufri adgang.

Velegnet til atelier, studie, kombineret lager og kontor eller bare som depot.

Lejemålet er ikke godkendt til kontor/erhverv.

Kontakt os for besigtigelse eller nærmere information på tlf. 8619 1844 eller info@taekkerrealestate.dk

Christiansgade 4, kld.
8000 Aarhus C

SAGSINFORMATIONER