Butik i den smukke historiske Østbanegård

Butik i den smukke historiske Østbanegård

I den charmerende bevaringsværdige stationsbygning Østbanegård fra 1877 udbyder vi nu dette flotte butikslejemål til udlejning.

Her er en unik mulighed for at placere sig centralt mellem det gamle historiske Aarhus og det nye pulserende byliv omkring Aarhus Lystbådehavn, den nye havnefront og Aarhus-Ø.

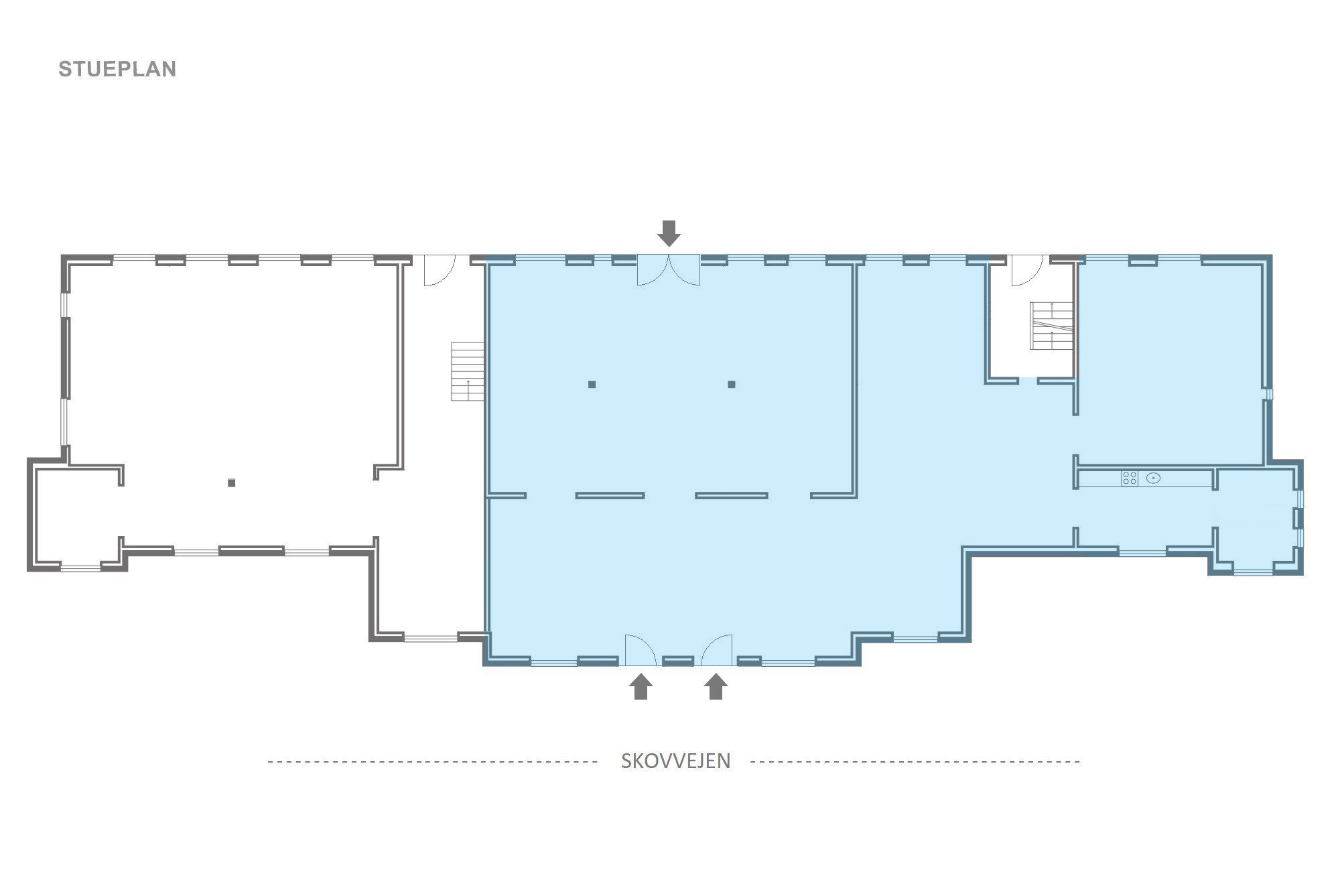
Lejemålet entreres fra Skovvejen igennem stort og indbydende indgangsparti.
Her træder man direkte ind i et stor højloftet rum, som oprindeligt var stationsbygningens ankomst- og ventesal. Herfra kan man åbne op og skabe direkte gennemgang til smuk dobbeltdør med udgang til togperronen mod øst.
Smukke oprindelige detaljer med det originale stengulv, er med til at give rummet en helt særlig og historisk atmosfære.
Lejemålet har en fleksible ruminddeling der giver mulighed for at åbne rummene op eller opdele alt efter behov.
Indretning og eventuelle forandringer kan drøftes udlejer og den kommende lejer imellem.

Der er mulighed for at leje parkeringsarealet ved den sydlige gavl af ejendommen. Arealet rummer 8 parkeringspladser.

Historie
Østbanegården blev opført i 1877 som hovedbanegård for Aarhus-Ryomgård-banen.
Ejendommen er tegnet af N.P.C Holsøe og opført i røde mursten. I 1904 blev stationen udvidet, hvor hallen blev gjort dybere. Bygningen havde mange funktioner. Den skulle fungere som ventesal, billetsalg, kiosk, og stationsforstanderen boede i den øverste etage. I 1984 stod bygningen overfor nedrivning hvilket blev forhindret af stor folkelig modstand. En selvejende institution købte bygningen for et symbolsk beløb og satte den i stand med stor respekt for dens arkitektoniske og kulturhistoriske værdier. Der blev fundet nye lejere, som kunne udnytte de fine historiske rammer.

Beliggenhed
Ejendommen er særdeles attraktivt beliggende i det centrale Aarhus. Der er rig mulighed for brug af midtbyens mange faciliteter inden for gåafstand og ikke mindst Aarhus Ø og det populære Trøjborg, hvor der er skønne omgivelser, som skov, vand og indkøbsmuligheder. Ejendommen er beliggende lige i skellet mellem den gamle og nye bydel, med facade til Skovvejen, som binder Kystvejen og Dronning Margrethes Vej sammen og bagside mod den nye havnefront og det spirende nye Aarhus Ø. På denne adresse er synligheden stor grundet trafiktætheden til og fra centrum.

Skovvejen 2, st. th.
8000 Aarhus C

SAGSINFORMATIONER