Erhvervslejemål i hjertet af Aarhus

Erhvervslejemål i hjertet af Aarhus

Lejemålet ligger i FDBs gamle pakhusejendom på Vesterbro Torv, ikke langt fra Rådhus Pladsen, AROS, Musikhuset og med Vestergades stemningsfulde miljø og indre by lige rundt om hjørnet.
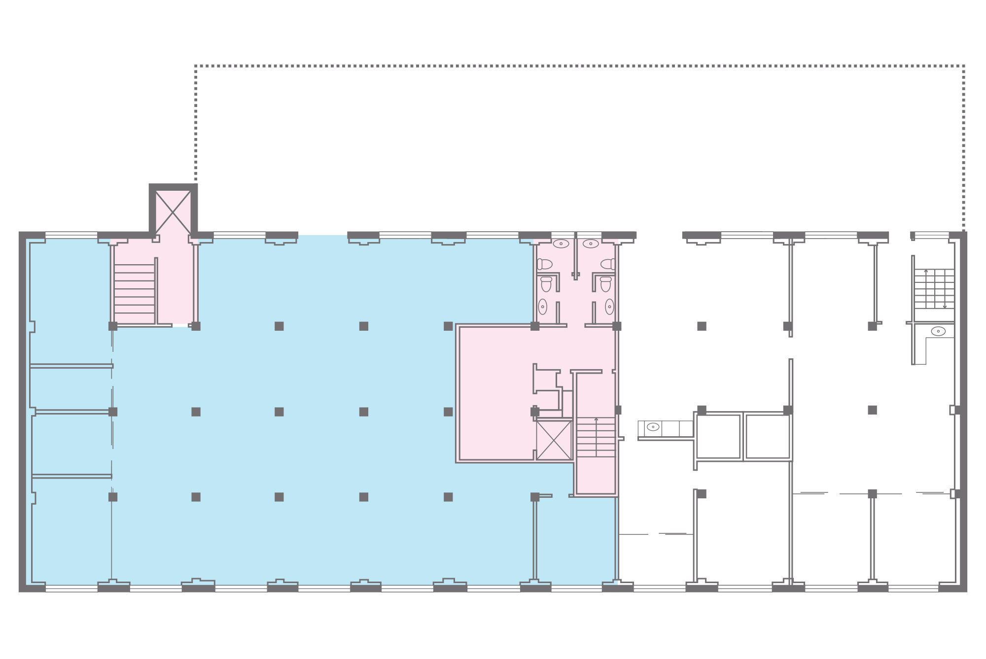
Ejendommen entreres via et stort fælles indgangsparti, hvorfra der er adgang til lejemålet via både trappe og elevator.

Lejemålet er 633 m² og fremstår lyst og råt med fritstående søjler, betongulve, hvidmalede vægge og troldtekt lofter. Lokalerne består af et stort gennemlyst åbent kontorrum og en række separate kontorer/mødelokaler. I det fælles ankomstareal på etagen finder i pæne toilet- og badefaciliteter. Fra lejemålet er der desuden direkte udgang til stor sydvendt terrasse.Det fantastiske lysindfald fra de to langsider med vinduer og en rigtig god loftshøjde, gør at lejemålet fremstår utrolig lyst og rummeligt. De fritstående søjler giver fleksible muligheder for at tilpasse indretningen efter lejer behov.

Der er gode parkeringsmuligheder ved ejendommen, ligesom der er nem adgang til offentlig transport.

Her har du en unik mulighed for at blive lejer i et velholdt og centralt beliggende pakhus med god stabil og mangfoldig lejer-sammensætning.

Vesterbro Torv 3, 1. tv.
8000 Aarhus C

SAGSINFORMATIONER