Unik mulighed for etablering af kunstnerværksted

Unik mulighed for etablering af kunstnerværksted

Sydhavnsgade 7 er super attraktiv placeret på Aarhus Havn tæt på midtbyen, Lystbådehavnen og lige ved udmundingen af indfaldsvejen til E45.

Bag bygningens rå og industrielle facader gemmer sig et væld af anvendelsesmuligheder herunder kunstnerværksted, kontor eller lign.

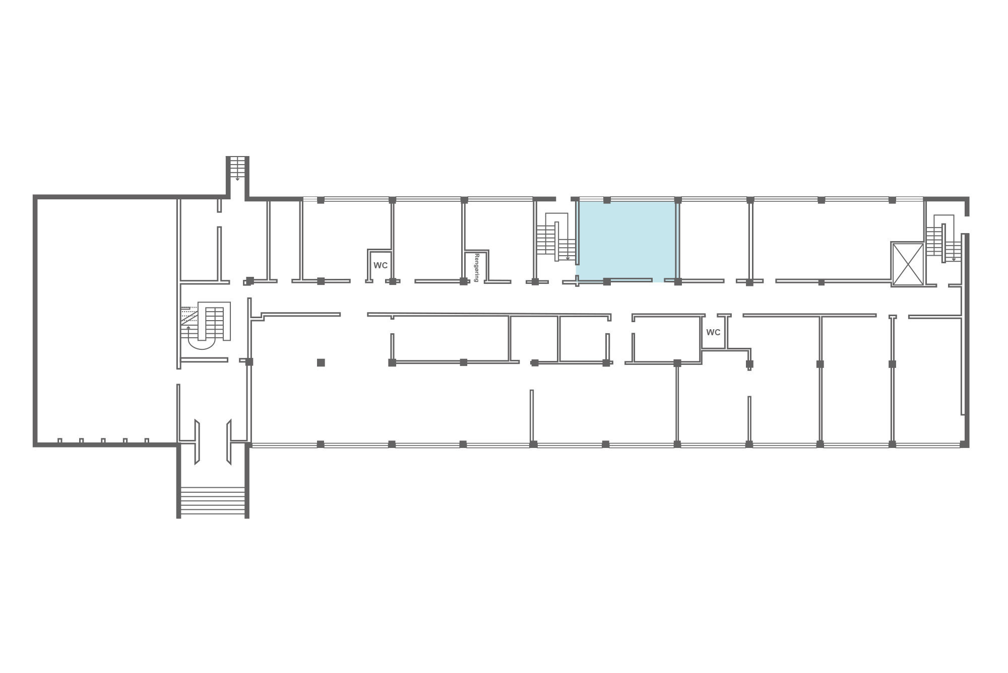
Lokalet er 51 m² og har adgang til fælles toiletter på etagen.

Der er gode parkeringsforhold med mulighed for leje af parkeringspladser i gården og med gratis korttidsparkering ude foran ejendommen.

Kontakt os for besigtigelse eller nærmere information, på tlf. 8619 1844 eller info@taekkerrealestate.dk

Sydhavnsgade 7, st. 0.48.
8000 Aarhus C

SAGSINFORMATIONER