Fantastisk lejlighed med 3 altaner, atriumgård og panoramaudsigt

Fantastisk lejlighed med 3 altaner, atriumgård og panoramaudsigt

Går I med en lille drøm om livet i et bofællesskab, så har i nu mulighed for at realisere den, i helt fantastiske rammer i Nye. Om I er flere generationer samlet under ét tag, to familier eller måske et mini “kollektiv” med dine bedste venner, så er rammerne til stede.
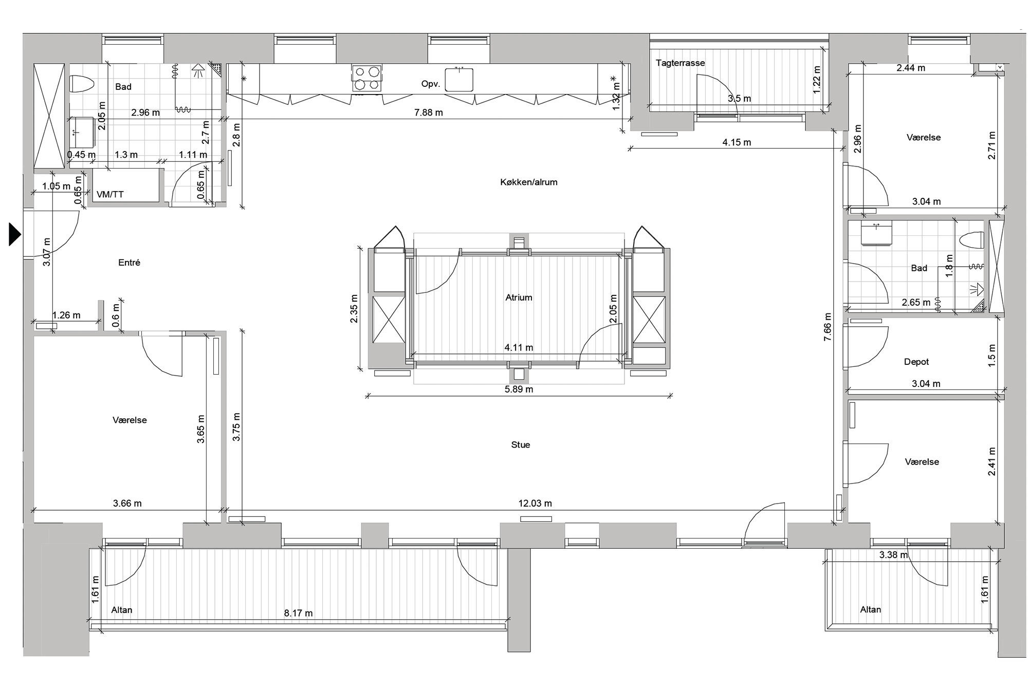
Lejligheden er 197 kvm. og rummer i dag 3 værelser med mulighed for etablering af yderligere to, dvs. 5 værelser foruden alrum / stue, to badeværelser, depotrum og entré. Udelivet kan nydes i Nyes grønne mellemrum, i atriumgården eller på de 3 altaner der hører til lejligheden.

Nyes funktionalitet og tankegang inspirerer til et aktivt fritidsliv, lokalt engagement og fællesskab. I Nye er liv, variation og balance
kerneværdier for det gode liv.

NYE
Svinget ligger i Nye, smukt placeret med udsigt over Aarhus, Aarhus Bugt og Egå Engsø. Terrænet er bakket og skrånende mod syd,
omkranset af mark og skov.

Boligerne kombinerer det bedste fra den tætte midtby med det bedste fra forstaden i et grønt og aktivt byliv. Nye udspringer fra et
ønske om at tænke og leve anderledes, bevidst og bæredygtigt. Kerneværdier som liv, variation og balance er en bærende del af
byens identitet.

Lejer betaler a´conto vand, mens forbrug af el og varme afregnes af lejer direkte med forsyningsselskaberne.

Ringen 37, 3. 3.
Nye
8200 Aarhus N

SAGSINFORMATIONER